Wohnen heute und in Zukunft
Wenn sich die persönlichen Ansprüche an das Wohnen verändern, rücken andere Qualitäten in den Mittelpunkt: Komfort, Sicherheit und ein Umfeld, das den Alltag angenehm gestaltet. ALTO30 kann genau das bieten – mit durchdachten Grundrissen, hochwertiger Ausstattung und einer Wohnanlage, die bewusst ruhig und klar strukturiert ist. Mitten im Aubinger Dorfkern entstehen Wohnungen für Menschen, die sich bewusst für Qualität entscheiden und ein Zuhause suchen, das heute und auch in Zukunft echtes Wohlbefinden sichert.

Komfortabel Wohnen in entspannter Atmosphäre
ALTO30 ist als autofreies Quartier geplant. Das schafft eine ruhige Atmosphäre und klare Wege innerhalb der Anlage, ohne Durchgangsverkehr oder Hektik. Die Tiefgarage liegt unter der Anlage und ist komfortabel erschlossen. Von dort erreichen Sie die Wohnungen in den Mehrfamilienhäusern bequem per Aufzug. Stellplätze sind für E-Mobilität vorbereitet, Fahrräder finden geschützt ihren Platz. So bleibt das Grundstück oberirdisch ruhig – und der Alltag entspannt organisiert.

Urban angebunden, angenehm gelegen
Aubing verbindet gewachsene Strukturen mit einer sehr guten Infrastruktur. Einkaufsmöglichkeiten, Apotheke, Ärzte, Cafés und der Ortskern sind schnell erreichbar. Gleichzeitig ist die Anbindung hervorragend: Mit der S-Bahn sind Sie in rund 20 Minuten in der Münchner Innenstadt, nach Pasing mit den Arcaden sogar in wenigen Minuten.
Für Bewegung und Erholung liegen Aubinger Lohe und Langwieder See ganz in der Nähe – ideal für Spaziergänge, kleine Radtouren oder einfach Zeit im Grünen. Was alles rund um das neue Zuhause in ALTO30 erreichbar ist, lesen Sie in diesem Artikel auf unserem Blog: Rund um ALTO30 – was Aubing zu bieten hat
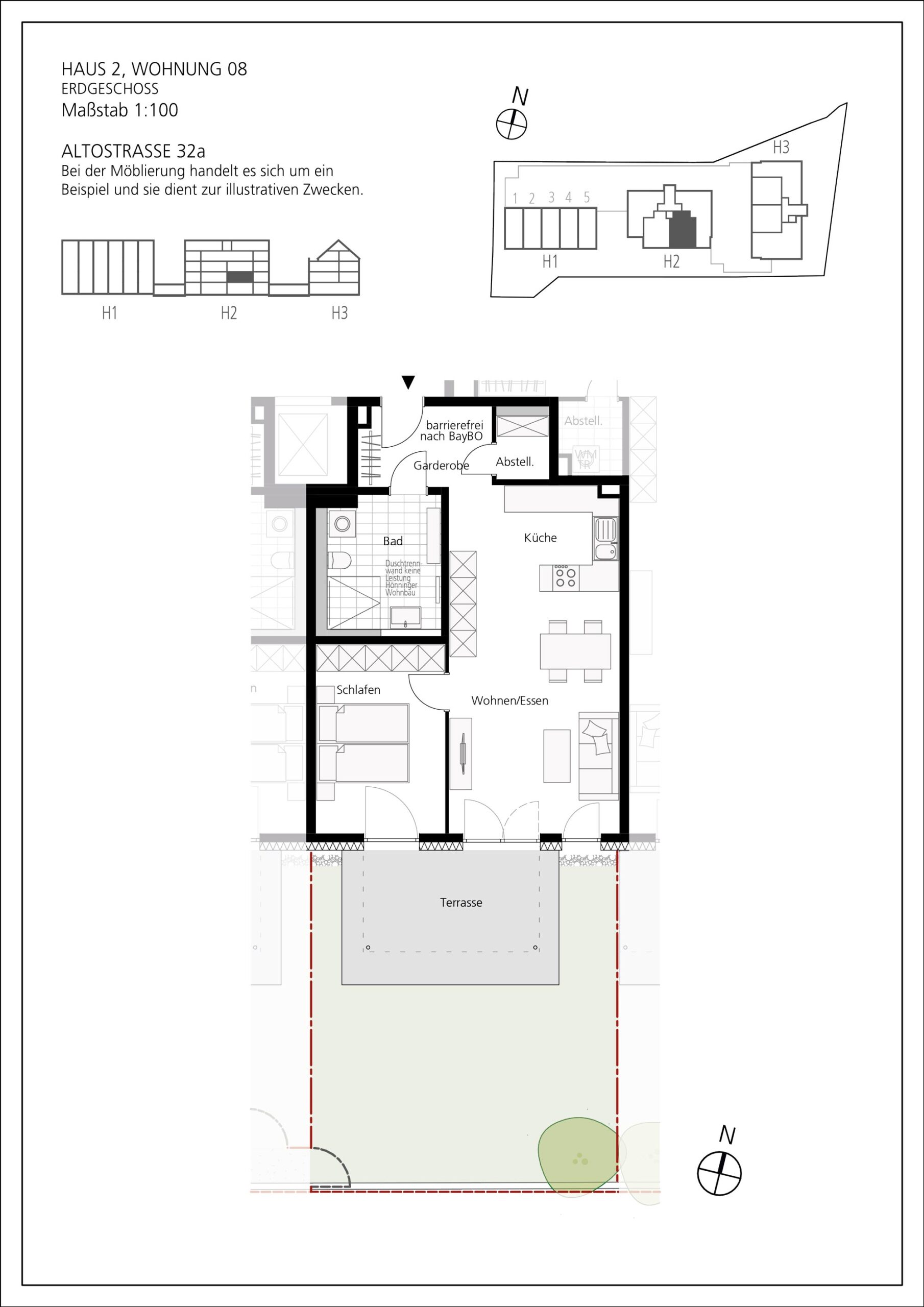
Beispielgrundriss: Wohnung 8 – optimal geschnitten und vorausschauend gedacht
Die 2-Zimmer-Wohnung ist barrierefrei nach BayBO ausgeführt und überzeugt durch kurze Wege, eine harmonische Raumaufteilung und alles auf einer Ebene.

Der offen gestaltete Wohn-, Ess- und Kochbereich bietet ausreichend Platz für einen komfortablen Alltag und gesellige Zeit mit Gästen. Schlafzimmer und Bad sind durchdacht angeordnet und sichern Wohlbefinden im Alltag. Die Terrasse mit privatem Gartenanteil schafft einen ansprechenden, ruhigen Außenbereich, der sich direkt an den Wohnraum anschließt.
Die barrierefreie Ausführung ist dabei ein bewusst mitgedachter Komfort für ein Zuhause, das heute modern, angenehm und zeitgemäß ist und auch langfristig bleibt.

Eine ausgewogene Nachbarschaft
ALTO30 bietet ein vielfältiges Wohnungsangebot: Neben Familiendomizilen entstehen hier auch Wohnungen für Paare, Einzelpersonen und Menschen, die bewusst kompakter wohnen möchten. Diese Mischung sorgt für eine ausgewogene Nachbarschaft, in der man sich schnell wohlfühlt.
Viele schätzen genau dieses Umfeld: lebendig, aber ruhig. Persönlich, aber nicht aufdringlich. Ein Wohnprojekt, das Begegnung ermöglicht, ohne sie zu erzwingen.
Private Außenbereiche und gemeinschaftliche Qualität
Jede Wohnung in ALTO30 verfügt über einen eigenen Außenbereich – Garten, Balkon oder Dachterrasse. Ergänzt wird dies durch ansprechend gestaltete Gemeinschaftsflächen, die offen wirken und dennoch Rückzug erlauben.
Die Architektur fügt sich ruhig in die gewachsene Umgebung ein. Große Fenster, viel Tageslicht und hochwertige Materialien prägen das Wohngefühl und schaffen eine angenehme Atmosphäre.

Nachhaltig gebaut, wirtschaftlich im Alltag
ALTO30 erfüllt den energetischen Standard GEG 40 EE. Die Beheizung erfolgt über eine Grundwasserwärmepumpe, eine Photovoltaik-Vorbereitung ist vorgesehen. Das sorgt für niedrige Betriebskosten, Planungssicherheit und eine Immobilie, die auch langfristig überzeugt.
Ausstattung, die den Alltag erleichtert
ALTO30 wird von der Hönninger Wohnbau GmbH realisiert, einem Münchner Familienunternehmen mit langjähriger Erfahrung. Gebaut wird mit hochwertigen Materialien, regionalen Partnern und einem klaren Qualitätsanspruch. „Bauen mit Verantwortung – aus München, für Sie.“
Fazit: Ein Zuhause, das mitdenkt
ALTO30 richtet sich an Menschen, die Wert auf Komfort, Ruhe und ein stimmiges Wohnumfeld legen. Wohnungen, die gut geplant sind, vorausschauend gedacht und Teil einer Nachbarschaft, in der man sich langfristig zuhausefühlen kann.
Ein Zuhause, das den Alltag erleichtert – und Raum für alles lässt, was wichtig ist.