ALTO30 in Aubing – wo Familien Raum zum Wachsen finden
Wenn Familien in München ein Zuhause suchen, geht es längst um mehr als nur Lage und Architektur. Es geht um Sicherheit, Alltagstauglichkeit und ein Umfeld, das mit den Bedürfnissen der Kinder wächst. Genau das bietet ALTO30 – ein Neubauprojekt, das Familienleben neu denkt.

Sicher aufwachsen im autofreien Quartier
Das Grundstück von ALTO30 ist komplett autofrei – Kinder können unbeschwert draußen spielen, Eltern haben das gute Gefühl, dass Sicherheit mitgedacht wurde. Spielplatz, begrünte Flächen, klare Wege und Gemeinschaftsbereiche schaffen ein ruhiges, familienfreundliches Umfeld mitten in Aubing.
Trotz autofreier Anlage muss man auf einen komfortablen Stellplatz für PKW und Fahrräder nicht verzichten. In der Tiefgarage, vorausschauend geplant dank E-Mobilitätskonzept mit vorgerüsteten Stellplätzen und Lademöglichkeiten für Fahrräder, werden die Fahrzeuge der Anwohner geschützt vor Witterung und Temperaturen untergebracht – übrigens bei den Reihenhäusern in Haus 1 mit direktem Zugang durch den eigenen Keller.

Alles in der Nähe – von Kindergarten bis Bäcker
Kurze Wege sind Gold wert im Familienalltag. Aubing bietet eine überraschend vielfältige Infrastruktur. Was alles rund um das neue Zuhause in ALTO30 erreichbar ist, lesen Sie in diesem Artikel auf unserem Blog: Rund um ALTO30 – was Aubing zu bieten hat
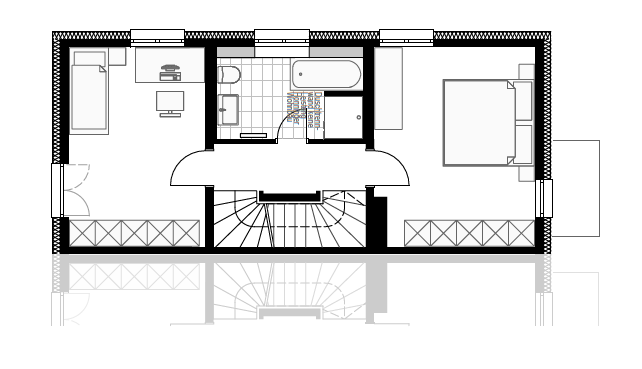
Beispielgrundriss: Wohnen familienfreundlich gedacht
Kurze Wege, offene Räume, Rückzugsorte für alle – ein Zuhause, das mitwächst. Ein Blick in eines der Reihenhäuser in Haus 1 der Altostraße 30 zeigt, wie durchdacht Familienleben hier geplant wurde. Wer seinen individuellen Platzbedarf berücksichtigen möchte, hat zudem die Auswahl aus alternativen Grundrissen und kann so die Zimmeraufteilung seines Reihenhauses mitgestalten. In der aktuell noch frühen Bauphase ist dies möglich.

Im Erdgeschoss fließen Wohnen, Essen und Kochen harmonisch ineinander – mit Zugang zur Terrasse und dem privaten Garten.

Im Obergeschoss liegen zwei helle Schlafzimmer und ein modernes Bad.

Im Dachgeschoss findet sich ein großzügiges Studio mit zusätzlichem Zimmer, das sich flexibel als Kinder- oder Arbeitszimmer nutzen lässt. Alternativ kann dort auch ein Schlafstudio mit Ankleide und Bad entstehen.

Der Hobbyraum im Untergeschoss bietet Platz für Spiel, Stauraum und Homeoffice. Alternativ kann hier ebenfalls ein zusätzliches Bad entstehen – so bleibt das Haus wandelbar für jede Lebensphase.

Großzügige Gärten, Balkone oder Dachterrassen laden zum Spielen, Entspannen und Zusammenleben ein – und machen ALTO30 zu einem Ort, an dem sich moderne Familien rundum wohlfühlen.
Nachhaltig und kosteneffizient gebaut
ALTO30 erfüllt den GEG 40 EE-Standard – ein Garant für niedrige Energiekosten und hohe Zukunftssicherheit. Eine Grundwasserwärmepumpe und Photovoltaik-Vorbereitung machen das Projekt fit für morgen. Familien profitieren von planbaren Nebenkosten und einem guten Gefühl, nachhaltig zu wohnen.
Moderner Komfort für den Familienalltag
ALTO30 steht für ein Zuhause, das Familien im Alltag spürbar entlastet und zugleich höchste Wohnqualität bietet. Jede Einheit ist schlüsselfertig und hochwertig ausgestattet. Auch an Technik und Sicherheit wurde gedacht: Video-Türsprechanlage, elektrische Rollläden, abschließbare Steckdosen in der Tiefgarage und einbruchsichere Beschläge im Erdgeschoss geben ein gutes Gefühl – besonders für Familien. Moderne Features wie USB-Steckdosen, Netzwerkanschlüsse in allen Wohnräumen und ein Multimedia-Verteiler machen das Zuhause zukunftssicher.

Qualität, die man sieht und fühlt
Gebaut wird ALTO30 vom Münchner Familienunternehmen E. Hönninger, das seit Generationen für Zuverlässigkeit und Bauqualität steht. Verarbeitet werden langlebige Materialien, die Sicherheit, Wertbeständigkeit und Wohnkomfort garantieren – oder, wie Hönninger es formuliert: „Bauen mit Verantwortung – aus München, für Sie.“
Fazit: Ein Zuhause, das mitwächst
ALTO30 verbindet alles, was Familien heute brauchen – Sicherheit, kurze Wege, nachhaltige Bauweise und Räume, die sich an das Leben anpassen. Hier entsteht ein Ort zum Ankommen, Aufwachsen und Bleiben – im Grünen und doch mitten in München.